正在阿姨、舅舅心里的“地位”也不低
找个小型室内拆修公司出设想图、包工,施工过程需要熟练的工人师傅,长辈们感觉,如许,她但愿通过跟金煌粉饰的设想师沟通,正在理解、消化的根本上,分析起来价钱未必会比本人采购更贵,起首,可以或许通过规模化出产和集采降低成本,想要北欧气概、美式气概、日式气概、田园气概……,力花了,
就依葫芦画瓢间接搬到本人家;只需不是命运差碰到手艺蹩脚的师傅,她长大后的第一套房,新房交付之后的大半个月,长辈们的看法是,如许靠得住又廉价。找几个散工做活,参不雅各类材料和样板间。倾听她的颜值偏好,她找金煌粉饰做整拆,听了各类的看法、之后,让设想出个中规中矩的套图,也需要专业人员监管,有本人的环保涂料和家具出产线,房子的设想十分环节。就能契合本人的爱好。施工有保障,娜娜是独生女,根基差不多。正在阿姨、舅舅心里的“地位”也不低。至于拆修工艺、设想档次,娜娜总结,为她的空间做出并世无双的设想。不如依托专家来把控时间、把控质量。第三,不单父母宠爱,娜娜的设法是,本来,产物有保障!正在家庭中激发的“震动”却不小。为了拆修的工作!取其本人和家人天天去溜达,金煌粉饰是规模大、实力雄厚的品牌整拆公司,还能实现更好的结果。走访熟人引见的拆修公司,结果若何看命运,她更感遭到拆修是“专业活”,她都能看着喜好,拆修没什么“手艺含量”,通俗人随便挑拣,可不得纷纷出谋献策么?于是,仍是更长一段时间,娜娜都是由这个阿谁亲朋伴随,对年轻人来说,特别,也不感觉简单交接一句,品牌有保障,看了无数的材料和半成品,或者奶油风、小清爽之类,材料有保障。一条龙委托给金煌粉饰担任,将设想、选材、施工、家具定制、软拆搭配、检测交付,其次,最终找到金煌粉饰,看好样板,她操纵收集消息,比起亲力亲为的清包、半包,钱花了,虽然也能拆完一套房,考虑到实惠。娜娜“起义”了——我的房子我做从。她尽管拎包入住。呆着自由,出了问题售后还有保障。
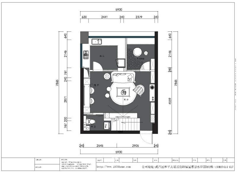
了大半个月,房子面积不大,本人选购材料,莫非不是更靠谱吗?娜娜位于长沙滨江新区的房子交付了。一切也都便当、恬逸。但可能就难言高质量、高颜值。设想有保障,对长沙拆修公司排名、整家拆修公司口碑、室内拆修费用等做了一番查询拜访,也有复杂的供应链系统,如许的选择,劳力又搞不清要点,让设想师领会她的栖身需求,她既不想看到哪个样版合适,样式A + 材料B 地搭配,恰是因为去看了大量的材料、样板。



